हम प्रदर्शन, सुरक्षित ऑपरेशन विधियों, और HXजीएन-12 मध्यम-वोल्टेज स्विचगियर के तकनीकी पैरामीटर प्रस्तुत करेंगे
1.उपयोग का दायरा

HXजीएन□-12 (एफआर) बॉक्स-टाइप तय एसी धातु संलग्न स्विचगियर (जिसे "रिंग नेटवर्क कैबिनेट" के रूप में जाना जाता है) शहरी बिजली ग्रिड के नवीकरण और निर्माण के लिए डिज़ाइन किए गए स्विचगियर का एक नया प्रकार है।यह बिजली आपूर्ति प्रणाली में एक ब्रेक लोड वर्तमान, शॉर्ट सर्किट वर्तमान और बंद डिश वर्तमान के रूप में भी उपयोग किया जाता है, और एसी 3-10केवी, 50Hz बिजली वितरण प्रणाली के लिए उपयुक्त है।इसका व्यापक रूप से शहरी बिजली ग्रिड निर्माण और नवीकरण परियोजनाओं, औद्योगिक और खनन उद्यमों, उच्च-उच्च इमारतों और सार्वजनिक सुविधाओं, आदि में उपयोग किया जाता है,एक रिंग नेटवर्क बिजली आपूर्ति इकाई और टर्मिनल उपकरण के रूप में, बिजली वितरण, नियंत्रण और विद्युत उपकरणों की सुरक्षा की भूमिका निभाते हैं, और पूर्व-इंस्टॉल किए गए सबस्टैशन में भी स्थापित किया जा सकता है।यह रिंग नेटवर्क कैबिनेट एक वैक्यूम लोड स्विच और एक स्प्रिंग ऑपरेशन तंत्र से सुसज्जित है, जिसे मैन्युअल रूप से या इलेक्ट्रिक रूप से संचालित किया जा सकता है।ग्राउंडिंग स्विच और अलगाव स्विच मैनुअल ऑपरेशन तंत्र से सुसज्जित हैं, और इस रिंग नेटवर्क कैबिनेट का पूरा सेट मजबूत और छोटा है।दहन और विस्फोट का कोई खतरा नहीं है, और इसमें एक विश्वसनीय "पांच रोकथाम" कार्य है।यह रिंग नेटवर्क कैबिनेट GB3960 "3 ~ 35केवी एसी धातु स्विचगियर" और IEC60420 "उच्च वोल्टेज एसी लोड स्विच-फ्यूज संयोजन विद्युत उपकरणों" मानक के प्रासंगिक प्रावधानों का अनुपालन करता है।
2.मॉडल और इसका अर्थ
HXजीएन□-12 (F.R.)
H: रिंग नेटवर्क
X: बॉक्स प्रकार
G: स्थिरता
N: इनडोर
□: डिजाइन सीरियल नंबर
12: रेटेड वोल्टेज
(F.R)लोड स्विच-फ्यूज संयोजन
3.उपयोग की सामान्य शर्तें
1.परिवेश का तापमानः -15. 0 40 °C;
2.ऊंचाई: 1000 मीटर और नीचे;
3.आर्द्रता की स्थितिः दैनिक औसत 95% से अधिक नहीं है, दैनिक औसत जल वाष्प दबाव 2.2kPa से अधिक नहीं है, मासिक औसत 90% से अधिक नहीं है, और मासिक औसत जल वाष्प दबाव एल 8kPa से अधिक नहीं है;
4.भूकंप की तीव्रताः 8 डिग्री से अधिक नहीं;
5.कोई स्पष्ट प्रदूषक नहीं हैं जैसे संक्षारक या ज्वलनशील गैसें।
नोटः यदि उपरोक्त सामान्य उपयोग की शर्तों को पार किया जाता है, तो उपयोगकर्ता कंपनी के साथ बातचीत कर सकता है।
4.मुख्य तकनीकी पैरामीटर
सीरियल नंबर | नाम | यूनिट | डेटा | |
1 | रेटेड वोल्टेज (Rated Voltage) | केवी | 12 | |
2 | रेटेड वर्तमान | लोड स्विचगियर | ए ए | 630 |
संयुक्त स्विचगियर | 125 | |||
3 | शॉर्ट सर्किट ब्रेकिंग वर्तमान | का | 31.5 | |
4 | रेटेड सक्रिय लोड वर्तमान तोड़ने | ए ए | 630 | |
5 | अल्पकालिक प्रतिरोध के लिए रेटिंग वर्तमान | का | 20 | |
6 | रेटेड पीक वर्तमान का सामना करता है | का | 50 | |
7 | विद्युत आवृत्ति वोल्टेज इंटरफेस का सामना करने के लिए रेटेड है, जमीन/टूटना | केवी | 42/48 | |
8 | बिजली का झटका वोल्टेज चरण के लिए प्रतिरोधी है, जमीन/टूटना | केवी | 75/85 | |
9 | यांत्रिक जीवन | समय | 10000 | |
10 | रेटेड हैंडओवर वर्तमान (संयुक्त उपकरणों) | ए ए | 3150 | |
11 | यह कैसे काम करता है | मैनुअल या इलेक्ट्रिक | ||
12 | सुरक्षा स्तर | IP3X | ||
5.संरचनात्मक विशेषताएं (asचित्र 2 और चित्र 3) में दिखाया गया है
1.संरचनात्मक प्रदर्शन विशेषताएं
1.1.1 रिंग नेटवर्क कैबिनेट 8MF प्रोफाइल को अपनाता है, और पूरे फ्रेम को मॉड्यूलस छेद B = 2 (tan.
L1.2 रिंग नेटवर्क कैबिनेट FZN21-12डी. लोड स्विच या FZआरएन 21-12डी. फ्यूज संयोजन विद्युत उपकरण से लैस है, जिसमें एक अलगाव स्विच, एक वैक्यूम लोड स्विच और एक ग्राउंडिंग स्विच है, और डिस्कनेक्ट स्विच और ग्राउंडिंग स्विच में स्पष्ट ब्रेक हैं।
1,3 अलगाव स्विच, वैक्यूम लोड स्विच, ग्राउंडिंग स्विच, और कैबिनेट दरवाजे में सही और विश्वसनीय खुदाई और इंटरलॉकिंग डिवाइस हैं, जो प्रभावी ढंग से गलत संचालन को रोक सकते हैं और सुरक्षित रखरखाव सुनिश्चित कर सकते हैं।
4. यह मैन्युअल रूप से और इलेक्ट्रिक रूप से संचालित किया जा सकता है।
1. L5 माप कैबिनेट का कैबिनेट दरवाजा और उपकरण दरवाजा सीलिंग पिन से सुसज्जित हैं।
1.1.6 फ्यूज संयोजन इलेक्ट्रिक कैबिनेट और पिघलने के पिन के साथ ट्यूब पिघल।एक शॉर्ट सर्किट के मामले में, फायरिंग पिन तेजी से उद्घाटन और टूटने को प्राप्त करने के लिए ट्रिपिंग तंत्र को हिट करता है, जो प्रभावी रूप से विद्युत उपकरणों की रक्षा कर सकता है।
1. एल 7 रिंग मेश कैबिनेट सामने ऑपरेशन, विश्वसनीय दीवार स्थापना को अपनाता है।
2. "पांच रोकथाम" लॉक फ़ंक्शन
2. 2.1बिजली संचरण ऑपरेशन: केवल जब कैबिनेट दरवाजा बंद और बंद हो जाता है, और ग्राउंड स्विच को "खुला" स्थिति में संचालित किया जाता है, तो लोड स्विच को स्थिति को बंद करने के लिए संचालित किया जा सकता है।
2.2.2 बिजली कटौती ऑपरेशन: जब लोड स्विच अलगाव स्थिति में होता है, तो ग्राउंडिंग स्विच को बंद किया जा सकता है, और जब ग्राउंडिंग स्विच बंद स्थिति में होता है, तो इन्सुलेशन विभाजन को कैबिनेट दरवाजा खोलने के लिए जगह में डाला जाता है
2.1. 3 वैक्यूम इंटरप्टर को अविश्वसनीय रूप से अलगाव चाकू के साथ एक दूसरे से जुड़ा हुआ है, और अलगाव चाकू और ग्राउंडिंग चाकू एक दूसरे से जुड़ा हुआ है और कैबिनेट दरवाजे के साथ एक दूसरे से जुड़ा हुआ है, और इन्सुलेट विभाजन भी कैबिनेट दरवाजे के साथ एक दूसरे से जुड़ा हुआ है।
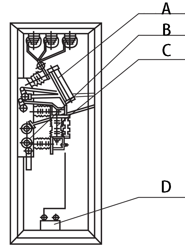
![]() | चित्र 2 ए: इन्सुलेटर Tag: दीवार के माध्यम से C: ऑपरेटिंग तंत्र डी.: ग्राउंडिंग स्विच |
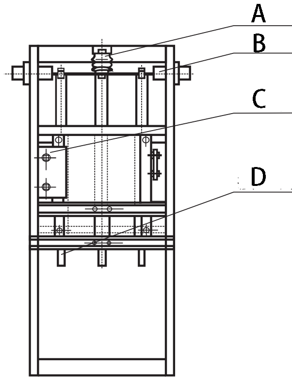
![]() | चित्र 3 ए: फ्यूज (इज़ोलेशन चाकू गेट) B: बुलेट नियंत्रण तंत्र C: लोड स्विच डी.: वर्तमान ट्रांसफार्मर |
6.रिंग नेटवर्क बिजली आपूर्ति के सिद्धांत
रिंग नेटवर्क बिजली आपूर्ति < तीन बुनियादी इकाइयों (चित्रा देखें) में शामिल है इनलेट और आउटलेट लाइन कैबिनेट का उपयोग रिंग नेटवर्क इकाइयों के रूप में किया जाता है, जो किसी भी गलती होने पर समय में अलग किया जा सकता है, और एक अन्य इकाई उपयोगकर्ता की ट्रांसफार्मर शाखा की निरंतर बिजली आपूर्ति सुनिश्चित करती है।उपयोगकर्ता लूप नेटवर्क कैबिनेट ट्रांसफार्मर की रक्षा और अलगाव में एक भूमिका निभाता है, जो रखरखाव और ओवरहाल के लिए सुविधाजनक है।रिंग नेटवर्क कैबिनेट को मनमाने ढंग से विस्तारित किया जा सकता है, और उपयोगकर्ता की आवश्यकताओं के अनुसार बुनियादी इकाइयों से विभिन्न संयोजन योजनाओं से बना सकता है।
![]() | ||
| केबल इनलेट और आउटलेट लाइन कैबिनेट उपयोगकर्ता ट्रांसफार्मर शाखा कैबिनेट केबल प्रविष्टि और निकास लाइन कैबिनेट |
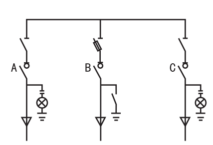
7.मुख्य सर्किट योजना आरेख
योजना संख्या | 01 | 02 | 03 | 04 | 05 | 06 |
मुख्य सर्किट योजना आरेख | ![]() | |||||
प्रयोग करना | लाइन के अंदर और बाहर केबल | लाइन के अंदर और बाहर केबल | लाइन के अंदर और बाहर केबल | लाइन के अंदर और बाहर केबल | लाइन के अंदर और बाहर केबल | लाइन के अंदर और बाहर केबल |
अलगाव/लोड / संयोजन उपकरणों | जीएन□-12डी. | जीएन□-12डी. | जीएन□-12डी. | FZN21-12डी. | FZN21-12डी. | FZN21-12डी. |
फ्यूज | आरएन 3 | आरएन 3 | ||||
वर्तमान ट्रांसफार्मर | LZZBJ9 | LZZBJ9 | ||||
बंदर | HY5W | |||||
योजना संख्या | 07 | 08 | 09 | 10 | 11 | 12 |
मुख्य सर्किट योजना आरेख | ![]() | |||||
प्रयोग करना | लाइन के अंदर और बाहर केबल | लाइन के अंदर और बाहर केबल | लाइन के अंदर और बाहर केबल | लाइन के अंदर और बाहर केबल | लाइन के अंदर और बाहर केबल | लाइन के अंदर और बाहर केबल |
अलगाव/लोड / संयोजन उपकरणों | FZN21-12डी. | FZN21-12डी. | FZN21-12डी. | FZN21-12डी. | FZN21-12डी. | जीएन□-12डी. |
फ्यूज | आरएन 2 | आरएन 2 | आरएन 2 | |||
वर्तमान ट्रांसफार्मर | LZZBJ9 | LZZBJ9 | LZZBJ9 | LZZBJ9 | ||
वोल्टेज ट्रांसफार्मर | Jडी.Z | Jडी.Z | Jडी.Z | |||
बंदर | HY5W | HY5W | HY5W | |||
योजना संख्या | 13 | 14 | 15 | 16 | 17 | 18 |
मुख्य सर्किट योजना आरेख | ![]() | |||||
प्रयोग करना | मेटिंग केबल इनबाउंड और आउटबाउंड लाइनें | लाइन के अंदर और बाहर केबल | लाइन के अंदर और बाहर केबल | लाइन के अंदर और बाहर केबल | मेटिंग केबल इनबाउंड और आउटबाउंड लाइनें | ओवरहेड आने वाले केबल आउटलेट |
अलगाव/लोड / संयोजन उपकरणों | FZआरएन 21-12 | FZआरएन 21-12डी. | FZआरएन 21-12डी. | FZआरएन 21-12डी. | जीएन□-12डी. | |
फ्यूज | आरएन 2 | एस□Lए एJ | एस□Lए एJ | एस□Lए एJ | आरएन 2 | आरएन 3 |
वर्तमान ट्रांसफार्मर | LZZBJ9 | LZZBJ9 | LZZBJ9 | LZZBJ9 | ||
वोल्टेज ट्रांसफार्मर | Jडी.Z | Jडी.Z | ||||
योजना संख्या | 19 | 20 | 21 | 22 | 23 | 24 |
मुख्य सर्किट योजना आरेख | ![]() | |||||
प्रयोग करना | ओवरहेड आने वाले केबल आउटलेट | ओवरहेड आने वाले केबल आउटलेट | ओवरहेड आने वाले केबल आउटलेट | ओवरहेड आने वाले केबल आउटलेट | ओवरहेड आने वाले केबल आउटलेट | ओवरहेड आने वाले केबल आउटलेट |
अलगाव/लोड / संयोजन उपकरणों | FZआरएन 21-12डी. | FZआरएन 21-12डी. | FZआरएन 21-12डी. | FZआरएन 21-12डी. | FZआरएन 21-12डी. | FZआरएन 21-12डी. |
फ्यूज | एस□Lए एJ | एस□Lए एJ | एस□Lए एJ | एस□Lए एJ | ||
वर्तमान ट्रांसफार्मर | LZZBJ9 | LZZBJ9 | LZZBJ9 | LZZBJ9 | ||
वोल्टेज ट्रांसफार्मर | ||||||
योजना संख्या | 25 | 26 | 27 | 28 | 29 | 30 |
मुख्य सर्किट योजना आरेख | ![]() | |||||
प्रयोग करना | संपर्क करें | संपर्क करें | माप और संपर्क | माप और संपर्क | ओवरहेड लाइन संपर्क | ओवरहेड लाइन संपर्क |
अलगाव/लोड / संयोजन उपकरणों | FZआरएन 21-12 | FZआरएन 21-12डी. | FZआरएन 21-12डी. | FZआरएन 21-12 | ||
फ्यूज | एस□Lए एJ | आरएन 2 | आरएन 2 | एस□Lए एJ | ||
वर्तमान ट्रांसफार्मर | LZZBJ9 | LZZBJ9 | ||||
वोल्टेज ट्रांसफार्मर | Jडी.Z | Jडी.Z | ||||
8.आकार और स्थापना आकार
1.रिंग नेटवर्क कैबिनेट का समग्र आकार
![]() | ![]() | कैबिनेट की चौड़ाई दिशा |
| विवरणः ऊंचाई चुन सकते हैं | कैबिनेट की गहराई दिशा |
2.रिंग नेटवर्क कैबिनेट का स्थापना आकार
![]() |
| नोटः चैनल स्टील विश्वसनीय रूप से ग्राउंड होना चाहिए |