हम प्रदर्शन, सुरक्षित ऑपरेशन विधियों और Zजीएस-12 पैड माउंट ट्रांसफार्मर के तकनीकी पैरामीटर प्रस्तुत करेंगे

1. जीeneral provisions
इस मैनुअल का उपयोग इंजीनियरों और तकनीशियनों की स्थापना, उपयोग और संयुक्त ट्रांसफार्मर के संचालन में सहायता करने के लिए किया जाता है (इसके बाद संयोजकों के रूप में संदर्भित किया जाता है)।
हमारे कारखाने द्वारा उत्पादित संयुक्त ट्रांसफार्मर बेंचटॉप इंस्टॉल के लिए एक पूरी तरह से इन्सुलेट, पूरी तरह से सील, जलproof तीन-चरण वितरण ट्रांसफार्मर है, जो कि3-चरण वितरण प्रणाली के साथrated voltage of 10kv. संबंधित राष्ट्रीय मानकों की आवश्यकताओं को पूरा करना
यह मैनुअल इलेक्ट्रिक उपकरणों की सामान्य ऑपरेटिंग प्रक्रियाओं के लिए एक उप-सिनियम नहीं है, न ही यह स्थापना, उपयोग और ऑपरेशन की सभी आवश्यकताओं को पूरा कर सकता है।.इन कार्यों को बिजली प्रणाली की सुरक्षा और ऑपरेटिंग प्रक्रियाओं से परिचित कर्मियों के साथ किया जाना चाहिए
2. Use conditions and environment
a. ए एltitude: no more than 1000M.
b. ए एmbient temperature: -25सी to 40सी
सापेक्ष आर्द्रता: 95% से अधिक नहीं (दैनिक औसत)
d. जीround inclination: no exercise 3.
e. Wind speed: no more than 35m/s.
हिंसक झटका और कंपन के बिना इनडोर और आउटडोर स्थान, कोई गंभीर प्रदूषण और रासायनिक संक्षारण मीडिया, और कोई विस्फोट खतरा नहीं।
3. Main technical parameters
सीरियल नंबर | नाम | यूनिट | High pressure side | ट्रांसफार्मर | कम दबाव पक्ष |
1 | रेटेड वोल्टेज (Rated Voltage) | केवी | 10 | 0.4 | |
2 | अधिकतम ऑपरेटिंग वोल्टेज | केवी | 12 | ||
3 | रेटेड क्षमता | केवीए ए | 50-2500 | ||
4 | रेटेड वर्तमान | ए ए | 10-630 | 100-2500 | |
5 | Withstand current for a short time | का | 12.5/20 | 12.6-40 | |
6 | एसhort tolerance time | एस | 2 | 1 | |
7 | Peak withstand current | का | 50 | 30-60 | |
8 | शक्ति आवृत्ति दबाव का सामना करती है | केवी | 35 | 35 | 5 |
9 | Lightning impact withstand pressure | केवी | 75 | 75 | |
10 | उच्च वोल्टेज वर्तमान-सीमित fues | का | 50 | ||
11 | सुरक्षा स्तर | Ip33 | Ip65 | Ip33 | |
12 | शोर का स्तर | db | W55 | ||
13 | रेटेड आवृत्ति | हर्ट्ज | 50/60 |
4. Unpacking acceptance inspection
क्षति, विरूपण और टूटने के लिए उत्पाद की जांच करें।जांचें कि पैकिंग सूची के अनुसार सामान और विशेष उपकरण पूरा हैं या नहीं, और install यह पुष्टि करने के बाद कि वे सही हैं।
5. Installation
ए. .विधानसभा को जमीन से 100-400 मिमी की ऊंचाई के साथ एक कंक्रीट आधार पर स्थापित किया जाता है जो विधानसभा के वजन को सहन करने के लिए पर्याप्त है।असेंबली आकार और आधार के अनुशंसित आकार आरेख अनुशिष्ट 1 में दिखाया गया है।
बी. केबल को जगह से पहले रखा जाता है और बिजली के बिना होना चाहिए।
सी.बॉक्स के शीर्ष के पास लोडिंग और अनलोडिंग के लिए एक हुक है, और स्टील केबल उठाने और ऊर्ध्वाधर रेखा के बीच का कोण 30 से अधिक नहीं हो सकता है जब खिंचा जाता है।यदि आवश्यक हो, तो संरचना या उठाने के हुक के विरूपण से बचने के लिए इस्पात केबल का समर्थन करने के लिए क्रॉसबार का उपयोग किया जाना चाहिए।असेंबली ट्रांसफार्मर के अधिकांश वजन मुख्य बॉक्स में केंद्रित है जिसमें लोहे के कोर, घुमावदार और इन्सुलेट तेल होता है, और अधिकांश उच्च और निम्न वोल्टेज टर्मिनल बॉक्स खाली हैं, और वजन अपेक्षाकृत हल्का है।(होंक या क्रेन के अनुचित उपयोग से विधानसभा या अन्य सामान को नुकसान हो सकता है, या कर्मियों को चोट हो सकती है)।)
नोटिस: यदि समूह ट्रांसफार्मर क्रेन द्वारा उठाया नहीं जा सकता है, तो इसे स्केटबोर्ड या रोलर के साथ स्लाइड किया जा सकता है।जब बॉक्स का समर्थन करें और इंट्रेट करें नीचे रोलर, कम से कम दो जैक की आवश्यकता होती है, और बॉक्स के नीचे के विरूपण से बचने के लिए आस-पास के दो कोणों को एक ही समय में आसानी से उठाया जाना चाहिए।जैक के लिए केवल बॉक्स के नीचे के कोनों पर रखा जा सकता है, और एक बैकअप प्लेट जोड़ा जाना चाहिए, और जैक को हीट सिंक, वाल्व या पतली स्टील के नीचे नहीं रखा जाना चाहिए प्लेट.यदि रोलर्स का उपयोग किया जाता है, तो संख्या उचित होनी चाहिए और बॉक्स का वजन समान रूप से ले जाना चाहिए।ट्रांसफार्मर को हटाने से पहले, बॉक्स ट्रांसफार्मर के नीचे के दोनों किनारों पर पुल रिंग स्थापित करें।केबल को पुनर्गठित कास्टिंग या अन्य शीट धातु के भागों में संलग्न न करें।
डी.. Installation site
संरचना में दो प्रकार के इन्सुलेटिंग तेल हैं, एक उच्च-इंजेशन बिंदु तेल है और दूसरा उच्च गुणवत्ता वाला खनिज तेल है।उच्च इजनिंग ऑयल के साथ समूह ट्रांसफार्मर (स्पष्ट संकेतों के साथ समूह ट्रांसफार्मर के कम-वोल्टेज अलगाव कमरे) का उपयोग इमारत या आउटडोर में किया जा सकता है; खनिज तेल की संरचना का उपयोग नहीं किया जा सकता है इमारतों. उच्च गुणवत्ता वाले खनिज तेल का ठंडा बिंदु है-45.उच्च जलती हुई तेल का फ्रीजिंग पॉइंट -30 है।1.उच्च-इजनिंग तेल के संयोजन का उपयोग उन क्षेत्रों में नहीं किया जा सकता है जहां परिवेश तापमान -30 डिग्री सेल्सियस से कम है।चाहे यह उच्च गुणवत्ता वाले खनिज तेल या उच्च-इजनिंग तेल का संयोजन हो, अगर इसे परिवेश का तापमान -20 डिग्री सेल्सियस से कम होने पर ऑपरेशन में रखा जाता है, तो इसे प्रीहीटिंग के लिए लोड के बिना 24 घंटे तक चलाने की आवश्यकता होती है और फिर धीरे-धीरे लोड किया जाता है।यदि कोई संदेह है, तो कृपया हमारे कारखाने से संपर्क करें।
6. Handover test
इंस्टॉलेशन पूरा होने के बाद, परीक्षण केबल प्लग को कनेक्ट करें (टेस्ट केबल प्लग को विकल्प के रूप में खरीदा जा सकता है), और राष्ट्रीय मानक की प्रासंगिक परीक्षण प्रक्रियाओं के अनुसार हैंडओवर परीक्षण करें.
7. Installation precautions
ए ए. When accessing the system
बीefore wiring any systemसबसे पहले बॉक्स को जमीन पर रखें।बॉक्स के ग्राउंडिंग टर्मिनल को एक निश्चित, कम प्रतिरोध ग्राउंडिंग बिंदु से जुड़ा होना चाहिए।
वायरिंग से पहले, सभी आस्तीन, बुशिंग, टर्मिनल टर्मिनल और संपर्क को साफ करें, और सभी धूल, तेल और विदेशी वस्तुओं को साफ करें। समूह के तटस्थ बिंदु और प्रणाली के तटस्थ बिंदु को जोड़ना
यह सुनिश्चित करने के लिए आवश्यक सामान स्थापित करें कि तेल उपयुक्त ऊंचाई पर हो।
जब कोई भी ड्यूटी पर नहीं है, तो दरवाजा बंद कर दें।
8. When operating
☆ सामान्य परिस्थितियों में, बिजली काटने के बाद फ्यूज डालने का ऑपरेशन किया जाना चाहिए, और ऑपरेशन से पहले संबंधित ऑपरेशन निर्देशों को ध्यान से पढ़ा जाना चाहिए।
☆ आंतरिक लोड स्विच का उपयोग केवल रेटेड वर्तमान को बाधित करने के लिए किया जा सकता है, लेकिन दोष वर्तमान को डिस्कनेक्ट करने के लिए नहीं।
लोड स्विच को संचालित करने के लिए उपयोग किया जाना चाहिए।
सी. When maintenance is required
☆ सिस्टम चल रहा है, जबकि समूह ट्रांसफार्मर ओवरहाल नहीं किया जा सकता है।रखरखाव से पहले, इसे इन्सुलेट, बिजली बंद और समूह ट्रांसफार्मर से पूरी तरह अलग किया जाना चाहिए।
☆ प्लग-इन फ्यूज को संचालित करें, तेल इंजेक्शन वाल्व खोलें और तेल टैंक खोलने से पहले ट्रांसफार्मर के आंतरिक दबाव को छोड़ दें (प्रबल रिलीफ वाल्व को खींचें), और आंतरिक दबाव शून्य होने से पहले उपरोक्त कार्यों को न करें।
चेतावनी: जारी की गई गैस ज्वलनशील हो सकती है, इसलिए इसे जारी करते समय सावधान रहें।
समूह ट्रांसफार्मर के बॉक्स का ढक्कन न खोलें जब तक कि यह बिल्कुल आवश्यक न हो।खोलने से पहले, साफ करें the ढक्कन के आसपास का क्षेत्र और नमी और धूल को रोकने के लिए कम से कम संभव समय में बंद करें बॉक्स में प्रवेश करने से। बारिश या बारिश के मौसम में बदलाव न करें।
8. Operation
ए ए. Inspection before commissioning
☆ जांचें कि क्या केबल जोड़ों को आवश्यकतानुसार जुड़ा हुआ है, और क्या आवरण जोड़ों और कोहनी प्लग जगह में जुड़ा हुआ है;
☆ सभी केबल जोड़ों और बॉक्स के ग्राउंडिंग तार को एक स्थिर, कम प्रतिरोध ग्राउंडिंग बिंदु से जुड़ा होना चाहिए;
यह पुष्टि करने के बाद कि कोई समस्या नहीं है, इसे ऑपरेशन में रखा जा सकता है;
☆ समूह ट्रांसफार्मर को ऑपरेशन में रखने से पहले, बॉक्स में तेल स्तर की ऊंचाई की जांच की जानी चाहिए, और तेल स्तर की ऊंचाई को सीधे तेल स्तर गेज से पढ़ा जाना चाहिए, और तेल का स्तर 25 डिग्री सेल्सियस पर तेल स्तर गेज की इंगित स्थिति पर होना चाहिए।
Note: समूह परिवर्तन को ऑपरेशन में रखने से पहले, आपको समूह परिवर्तन की गहराई से समझ होनी चाहिए।सुनिश्चित करें कि आप सभी उपकरणों और सहायक उपकरणों के अनुप्रयोगों और कार्यों से परिचित हैं।कृपया ऑपरेशन के दौरान सुरक्षात्मक कपड़े और आवश्यक सुरक्षात्मक उपकरण पहनें, और उपकरण को ग्राउंडिंग, परीक्षण, अलगाव या बंद करते समय इन्सुलेट ऑपरेटिंग लीवर का उपयोग करें।जब पुनर्गठन राज्य निर्धारित नहीं किया जा सकता है, तो इसे लाइव उपचार के रूप में माना जाता है।
बी. Preparation for commissioning
a. Refill oil
जरूरत पड़ने पर तेल को समय पर फिर से भर दिया जाना चाहिए।
☆ पंप और नोज का उपयोग करें जो दूषित नहीं हैं; रबर नोज का उपयोग न करें।चूंकि तेल इसमें निहित सल्फर को घुल देगा, इसलिए धातु या गैर-रबर के नोज का उपयोग किया जाना चाहिए।
तेल पंप के तेल इंजेक्शन बंदरगाह से तेल पंप के तेल इंजेक्शन बंदरगाह से कनेक्ट करें।
☆ सील किए गए अस्थायी कंटेनर के नीचे से तेल को वापस पंप करें, तेल इनलेट पाइप को हवा में खींचने की देखभाल न करें।
उच्च गति वाले तेल प्रवाह मुद्रास्फीति को रोकने के लिए, तेल स्तर की आवश्यकता होने तक धीरे-धीरे पंप करें।
b. जीrounding
ट्रांसफार्मर enclosure पर समर्पित जमीन को एक स्थायी ग्राउंडिंग बिंदु से जोड़ा जाना चाहिए।
c. High-voltage wiring
☆ विधानसभा एक सार्वभौमिक उच्च वोल्टेज केसिंग सॉकेट से लैस है।सिंगल-पास या डबल-पास आस्तीन जो आवरण सॉकेट के साथ मिलते हैं, उन्हें क्षेत्र में प्लग करने की आवश्यकता होती है।सिंगल-पास और डबल-पास आस्तीन की स्थापना पद्धति परिशिष्ट 3 में दिखा दी गई है।
☆ परिशिष्ट 4 में वर्णित स्थापना विधि के अनुसार उच्च-वोल्टेज वायरिंग केबल पर टॉगल केबल प्लग स्थापित करें, और फिर टॉगल प्लग को एकल या डबल पास आस्तीन में डालें।
d. Low voltage wiring
कम वोल्टेज केबलों को जोड़ने के लिए विधानसभा ट्रांसफार्मर पर तीन-चरण और तटस्थ तार टर्मिनल हैं।
Notice: समूह केवल नाम प्लेट पर निर्दिष्ट रेटिंग पर काम कर सकता है, और दीर्घकालिक ओवरलोड ऑपरेशन जीवन प्रत्याशा को महत्वपूर्ण रूप से प्रभावित करेगा।यदि समूह को बहुत लंबे समय तक आउटडोर में संग्रहीत किया जाता है, तो नमी सामग्री और डायलेक्ट्रिक ताकत की जांच करने के लिए तेल के नमूने ले जाए जाना चाहिए।जब समूह कारखाने छोड़ देता है, तो बॉक्स में तेल की सतह के ऊपर आम तौर पर एक कम वैक्यूम होता है (प्रशंस गेज नकारात्मक दबाव दिखाता है), जो सामान्य परिस्थितियों में ऑपरेशन या वातावरण में बदलाव के साथ बदल सकता है, यदि दबाव गेज लंबे समय तक शून्य दबाव दिखाता है, तो यह इंगित करता है कि रिसाव हो सकता है, और आगे का निरीक्षण आवश्यक है।
सी. Operational requirements
☆ ऑपरेशन से पहले, लाइन की ऑपरेटिंग स्थिति और टैप-चेंजर की स्थिति को समझना चाहिए, और लोड स्विच ट्रांसफार्मर से अलग स्थिति में होना चाहिए;
ऑपरेशन से पहले सभी केबल ग्रंथियों के उद्देश्य और कार्य को समझना;
☆ ऑपरेटर को सबसे अच्छी स्थिति में खड़ा होना चाहिए और ऑपरेशन से पहले लोड को संचालित करने के लिए इन्सुलेट ऑपरेटिंग लीवर का उपयोग करना चाहिए
☆ प्रासंगिक उच्च दबाव ऑपरेटिंग नियमों के अनुसार, सुरक्षा सुनिश्चित करने के लिए आवश्यक सुरक्षात्मक उपकरण का उपयोग किया जाना चाहिए।
डी.. Power transmission
पिछले स्तर स्विच बंद करें और फिर चालू करें लोड स्विच 8 की आवश्यकताओं के अनुसार ट्रांसफार्मर को कनेक्ट करने की स्थिति में।3, और समूह ट्रांसफार्मर ऑपरेशन में रखा जाएगा।
9. ए एttachments
ए ए. Tap changer
☆ समूह चर टैप-चेंजर एक लोड-मुक्त टैप-चेंजर है, और टैप-चेंजर ऑपरेशन केवल तभी किया जा सकता है जब यह पुष्टि की जाती है कि बिजली काट दी गई है।
☆ टैप-चेंजर में तीन या पांच गियर होते हैं, जिन्हें ए, बी, सी, डी और ई द्वारा चिह्नित किया जाता है, और टैप-आउट रेंज 10केवी ± 5% या 10केवी ± 2 * 2 है।5 प्रतिशत।
☆ टैप-चेंजर के "टी" आकार के ऑपरेटिंग हैंडल को उच्च दबाव कक्ष के पैनल पर स्थापित किया जाता है, ऑपरेशन से पहले, लॉक बोल्ट को unscrewed किया जाता है, और फिर आवश्यक स्थिति में घुमाया जाता है, और लॉक बोल्ट समायोजन के बाद कस जाता है।लॉक जोड़ने के लिए, आप लॉक बोल्ट को कम कस सकते हैं और इसे एक पडलॉक के साथ लॉक कर सकते हैं।
Note: टैप-चेंजर को संचालित करने से पहले समूह ट्रांसफार्मर को बंद किया जाना चाहिए, अन्यथा, यह समूह को नुकसान पहुंचाएगा और गंभीर व्यक्तिगत चोट का कारण बन सकता है।
लोड स्विच
☆ लोड स्विच एक त्वरित वसंत ऑपरेशन संरचना के साथ तीन चरण के लिंक स्विच है।दो प्रकार हैं: 2 पदों और 4 पदोंउनमें से, 2 पदों का उपयोग टर्मिनल प्रकार के ट्रांसफार्मर के लिए किया जाता है, और 4 पदों का उपयोग रिंग नेटवर्क प्रकार के ट्रांसफार्मर के लिए किया जाता है।
लोड स्विच का उपयोग केवल लोड करंट को बाधित करने के लिए किया जा सकता है, शॉर्ट-सर्किट करंट नहीं।
लोड स्विच को संचालित करने के लिए उपयोग किया जाना चाहिए।
Insertion fuse
☆ प्लग-इन फ्यूज बाहर से फ्यूज को बदलने के लिए सुविधा प्रदान करते हैं, जैसा कि फ्यूज को बदलने की विधि के लिए परिशिष्ट 2 में दिखाया गया है।
☆ संयोजन की विभिन्न क्षमताएं, उपयोग किए जाने वाले फ्यूज विनिर्देश अलग-अलग हैं, इसलिए आपको फ्यूज को बदलने पर ध्यान देना चाहिए।सभी चयनित फ्यूज मॉडल प्रत्येक समूह ट्रांसफार्मर उच्च दबाव कक्ष के दरवाजे के अंदर पर चिह्नित हैं, और फ्यूज को बदलने पर एक ही प्रकार के फ्यूज का चयन किया जाना चाहिए, और विभिन्न क्षमताओं के बॉक्स ट्रांसफार्मर के लिए चयनित फ्यूज मॉडल निम्नानुसार हैंः:
capacity | Insertion fuse specification |
100 | 4038108सी06 |
125 | 4038108सी07 |
160 | 4038108सी07 |
200 | 4038108सी09 |
250 | 4038108सी09 |
315 | 4038108सी09 |
400 | 4038108सी12 |
500 | 4038108सी12 |
630 | 4038108सी12 |
800 | 4038108सी14 |
1000 | 4000353सी16 |
1250 | 4000353सी16 |
1600 | 4000353सी17 |
डी.. सीable accessories
केबल सहायक उपकरणः कोहनी प्लग, सिंगल-पास आस्तीन (या डबल-पास आस्तीन), सिंगल-पास कनेक्टर (या डबल-पास कनेक्टर), इन्सुलेशन सुरक्षात्मक टोपी, see ए एppendix 3-5 respectively.
E. एसurge arresters
यदि आपको समूह पर एक बिजली बंदर स्थापित करने की आवश्यकता है, तो आप एक पूरी तरह से इन्सुलेट कोहनी प्रकार के जंक ऑक्साइड बंदर चुन सकते हैं।ट्रेन के साथ-साथ ट्रेन को भी एक डबल-पास केसिंग, डबल-पास केसिंग का एक छोर कोहनी-टाइप प्लग से जुड़ा हुआ है, और दूसरा छोर एक बिजली बंदर से जुड़ा हुआ है।सर्ज बंदर स्थापना विधि:
इसके अलावा, ग्राउंडिंग वायर को सिस्टम ग्राउंड से कनेक्ट करें।
सिस्टम ग्राउंडिंग अंत को सिस्टम ग्राउंडिंग के साथ जोड़ने के लिए तांबे के तार का उपयोग करें।
इस कारखाने द्वारा प्रदान किए गए चिकनाई के संपर्क सतह का उपयोग करें।
☆ आरोधक के ऑपरेशन छेद को हुक करने के लिए इन्सुलेट ऑपरेटिंग लीवर का उपयोग करें, और बल के साथ आवरण संयुक्त में आरोधक को डालें, और आरोधक को जगह पर डालना सुनिश्चित करें।नोटिस: परीक्षण के बाद बंदर को हटा दिया जाना चाहिए और फिर से स्थापित किया जाना चाहिए।
F. Fault indicator and voltage display
एसee ए एppendix 6
10. Maintenance
ए ए. External maintenance
संरचना के सभी बाहरी सतहों का नियमित रूप से निरीक्षण करें, और इसे तुरंत ठीक करें यदि कोटिंग में आकस्मिक चोट, खरोंच और पहनने हैं।
बी. Internal maintenance
नियमित रूप से जांचें कि क्या समूह के उच्च और कम दबाव कक्षों में सभी सहायक उपकरण और उपकरण सामान्य रूप से काम कर रहे हैं, और जांचें कि क्या प्रत्येक सीलिंग भाग में कोई रिसाव है।
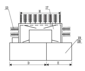
ए एppendix 1 संयुक्त ट्रांसफार्मर आकार और स्थापना
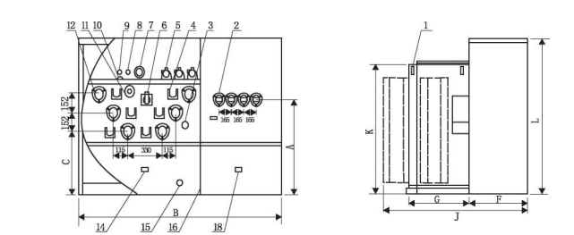
| 1 Hook 11 Oil temperature gauge 2 Low voltage casing 12 High voltage casing socket 3 tap-changer 13 heatsink 4 wall-mounted 14 high-pressure chamber grounding 5 Plug-in fuse 15 Oil drain valve 6 load switches 16 bulkheads 7 Pressure जीauge 17 Fuel Tank 8 Pressure relief valve 18 जीrounding of the low pressure chamber 9 Oil injection port 19 High pressure chamber 10 Oil level gauge 20 नामplate |
Figure मानक रिंग मेष प्रकार और टर्मिनल क्रूकन कार्प संयोजन प्रेस
सीomposition सीapacity (kVए ए). | ए ए | बी | सी | डी. | E | F | जी | H | J | के | L |
100 | 1030 | 1971 | 680 | 1091 | 880 | 536 | 560 | 1350 | 1176 | 1346 | 1580 |
125 | 1030 | 1971 | 680 | 1091 | 880 | 536 | 560 | 1350 | 1176 | 1346 | 1580 |
160 | 1030 | 1971 | 680 | 1091 | 880 | 536 | 560 | 1350 | 1176 | 1346 | 1580 |
200 | 1030 | 1971 | 680 | 1091 | 880 | 536 | 560 | 1350 | 1176 | 1346 | 1580 |
250 | 1030 | 1971 | 680 | 1091 | 880 | 536 | 560 | 1350 | 1335 | 1346 | 1580 |
315 | 1030 | 1971 | 680 | 1091 | 880 | 536 | 560 | 1350 | 1335 | 1346 | 1580 |
400 | 1030 | 1971 | 680 | 1091 | 880 | 536 | 560 | 1350 | 1335 | 1346 | 1580 |
500 | 1030 | 1971 | 680 | 1091 | 880 | 536 | 560 | 1350 | 1335 | 1346 | 1580 |
630 | 1290 | 2000 | 796 | 963 | 1037 | 660 | 660 | 1440 | 1540 | 1486 | 1710 |
800 | 1290 | 2000 | 796 | 963 | 1037 | 660 | 660 | 1440 | 1675 | 1486 | 1710 |
1000 | 1290 | 2000 | 796 | 963 | 1037 | 660 | 660 | 1440 | 1765 | 1486 | 1710 |
1250 | 1200 | 2205 | 836 | 1158 | 1047 | 660 | 760 | 1440 | 1865 | 1486 | 1710 |
1600 | 1200 | 2205 | 836 | 1213 | 992 | 660 | 800 | 1700 | 1920 | 1526 | 1710 |
Note: (1) । उपरोक्त आयाम केवल संदर्भ के लिए हैं;
(2) । टर्मिनल प्रकार और रिंग मेष प्रकार के समान समग्र आयाम हैं।
|
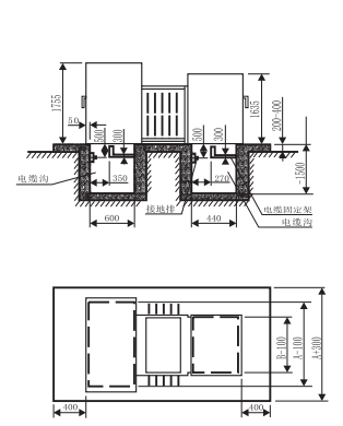
|
Figure मानक संयुक्त ट्रांसफार्मर की स्थापना का 1-3 योजनाबद्ध आरेख | Figure उप-माँ संयुक्त ट्रांसफार्मर की स्थापना का 1-4 योजनाबद्ध आरेख |

1 जीrounding of the low-pressure chamber 2 Low pressure casing 3 Hooks 4 Hyperbaric chamber 5 Fuel tank 6 Heat sink 7 Wall mounting 8 Oil Injection Port 9 Pressure relief valve 10 Oil level gauge | 11 Pressure gauge 12 लोड स्विच 13 Plug-in fuse 14 tap-changer 15 जीrounding in the hypervoltic chamber 16 High Voltage सीasing एसocket 17 एसpare Nuts कम दबाव कक्ष की 18 ग्राउंडिंग 19 Nameplates |
ट्रांसफार्मर क्षमता (केवीए ए). | ए ए | बी | F | जी | के |
100 | 2000 | 1400 | 660 | 1400 | 730 |
125 | 2000 | 1400 | 660 | 1400 | 730 |
160 | 2000 | 1400 | 660 | 1400 | 730 |
200 | 2000 | 1400 | 660 | 1400 | 730 |
250 | 2000 | 1400 | 660 | 1400 | 730 |
315 | 2000 | 1400 | 660 | 1400 | 730 |
400 | 2000 | 1400 | 660 | 1400 | 730 |
500 | 2000 | 1400 | 660 | 1400 | 730 |
630 | 2205 | 1400 | 800 | 1465 | 755 |
800 | 2205 | 1400 | 800 | 1465 | 755 |
1000 | 2205 | 1400 | 800 | 1465 | 755 |
1250 | 2205 | 1400 | 800 | 1465 | 755 |
Note: (1) । उपरोक्त आयाम केवल संदर्भ के लिए हैं;
(2) । टर्मिनल प्रकार और रिंग मेष प्रकार के समान समग्र आयाम हैं।
ए एppendix 2 Plug-in fuses
Pull out the fuse tube
1.दबाव रिलीज़ वाल्व को खींचें, और ईंधन टैंक में दबाव पूरी तरह से जारी होने के बाद, इन्सुलेट ऑपरेटिंग लीवर के साथ फ्यूज पाइप ऑपरेशन छेद को हुक करें।
2.ऑपरेटिंग हैंडल को नीचे धक्का दें ताकि ऑपरेटिंग हैंडल का मूवी हुक फ्यूज ट्यूब के ऑपरेटिंग छेद को लॉक करता है, और फ्यूज ट्यूब और फ्यूज सीट के बीच लॉक स्थिति को जारी करने के लिए 90 डिग्री तक फ्यूज ट्यूब के लॉक हुक को घुमाएं।
3.फ्यूज ट्यूब को लगभग 100 मिमी ऊपर खींचें, कुछ सेकंड के लिए रहें, और फ्यूज ट्यूब पर तेल के बाद धीरे-धीरे फ्यूज ट्यूब को खींचें।
4. हैंडल को पकड़ो और फ्यूज ट्यूब से तेल के दाग को मिटा दें।
नोट: यदि तेल फ्यूज माउंट से बाहर निकलता है, तो टैंक के अंदर और बाहर दबाव को संतुलित करने के लिए दबाव रिलीज़ वाल्व को फिर से खींचना चाहिए।
Replace the fuse
1.एक कुंजी के साथ फ्यूज हुई पाइप के नट को ढीला करें और दूसरे कुंजी के साथ दूसरे नट को अनस्क्राइक करें।(चित्र 2-1)
2. अंत बोल्ट को ढीला करें और फ्यूज को हटा दें। (चित्र 2-2)
(Note: यदि फ्यूज फ्यूज नहीं है, तो फ्यूज को हटाने से पहले सपाट फ़नल आकार के इलेक्ट्रोड को सीधा किया जाना चाहिए)
3. सफाई सुनिश्चित करने के लिए फ्यूज पाइप के अंदर का निरीक्षण करें।
4.एक छोर से एक नया फ्यूज डालें, और फ्यूज फ्लैड इलेक्ट्रोड को हैंडल के अंत में पहले से स्थापित किया जाता है।(चित्र 2-3)
5. फ्यूज पाइप स्थापित करें और इसे एक रिंच के साथ फाइंड करें, टॉर्क लगभग 5.7-8nm है।
6.फ़नल के आकार के इलेक्ट्रोड को फ्लैट करें, आंतरिक बोल्ट स्थापित करें, पिघलने को पकड़ने के लिए एक रिच का उपयोग करें, अंत बोल्ट को कसने के लिए एक और रिच का उपयोग करें, टॉर्क लगभग 5.7-8N.m है, और फिर अंत बोल्ट को अनस्क्रू करें, जांचें कि क्या फ़नल के आकार के इलेक्ट्रोड को अच्छे संपर्क सुनिश्चित करने के लिए फ्लैट किया गया है।
Install plug-in fuses
एक इन्सुलेट ऑपरेटिंग लीवर के साथ फ्यूज पाइप ऑपरेशन छेद को हुक करें।
2.फ्यूज ट्यूब को फ्यूज सीट में डालें, फ्यूज ट्यूब के लॉक हुक को 90 डिग्री से घुमाएं, और फ्यूज ट्यूब सीट के बीच सील सुनिश्चित करने के लिए फ्यूज को हुक करने के लिए लॉक को कसें।
Picture 2-1 | Picture 2-2 | Pictures 2-3 |
ए एppendix 3 एकल-चैनल आस्तीन और दोहरी-चैनल आस्तीन
डबल चैनल पाइप सफाई, चिकनाई और स्थापना 1.एकल-पास के ढलान की आवश्यकताओं के संदर्भ में डबल-पास के ढलान और ढलान सीट की संपर्क सतह को साफ करें, ग्रिस लागू करें, और डबल-पास के ढलान को घड़ी की दिशा में पेंच करें जब तक कि रैचेट निष्क्रिय न हो जाए और कसने के बाद ध्वनि बनाती है। 2. डबल पाइप को स्थिति के लिए एक फिक्सिंग प्लेट का उपयोग करें। 3. 0 का प्रयोग करें।सिस्टम जमीन के साथ डबल पाइप के ग्राउंडिंग छेद को जोड़ने के लिए 8 मिमी या समकक्ष तांबे के तार। 4.मिलान भागों (जैसे कोहनी प्लग, बिजली बंदर या इन्सुलेशन सुरक्षात्मक टोपी, आदि) स्थापित करें। |
|
एकल चैनल पाइप सफाई, चिकनाई और स्थापना 1.आवरण और ट्यूब सीट की संपर्क सतह को साफ करें, ग्रीस लागू करें, एकल-पास आवरण घड़ी की दिशा में पेंच करें, और इसे एक विशेष उपकरण (सात डेढ़ मोड़) के साथ कसें। नोटः यदि उपकरण टोक़ के साथ स्थापित है, तो टोक़ है 13.5N. m. 2. एक लचीले तार के साथ एकल-पास आवरण के ग्राउंडिंग छेद को जमीन दें। |
|
ए एppendix 4 Elbow plug
|
|
Figure 4-1 | Figure 4-2 |
कोहनी प्लग स्थापित करने के लिए निर्देश
1 .Three-core cable split phase treatment
☆ सीut off the inner and outer sheaths at the cable end > 800mm.
☆ अलगाव चरण में शाखा दस्ताने लगाएं, प्रत्येक एकल चरण के तार पर गर्मी सिकुड़ने के आवरण (बख्तर परत ग्राउंडिंग), चित्र देखें 4-2 for each treatment size.
2 .Elbow plug mounting
☆ केबल ब्रश के साथ कंडक्टर की सतह को साफ करें, केबल कंडक्टर पर ठंडे दबाए गए संयुक्त को रखें, कनेक्टिंग कंडक्टर को ठंडे दबाए गए संयुक्त के स्क्रू छेद में पेंच करें, और भविष्य में आवरण के माध्यम से एकल (डबल) डालें।
☆ उपयुक्त क्रिमपिंग टूल चुनें, क्रिमपिंग को शीत क्रिमपिंग संयुक्त के तांबे और एल्यूमीनियम कनेक्शन से शुरू करना चाहिए, और घूमना चाहिए 90° for each pressing, और नरम कपड़े के साथ अतिरिक्त लुब्रिकेंट को हटा दें।
कनेक्ट करने वाले कंडक्टर को बाहर खींचें और इसे काट लें।
☆ केबल की सतह और कोहनी प्लग के अंदर को साफ करें और लुब्रिक करें, धीरे-धीरे कोहनी प्लग में केबल को धक्का दें, और कवच वाले कनेक्टर के साथ कनेक्शन का मार्गदर्शन करें।ठंडे दबाए गए संयुक्त पर शिकंजा छेद कोहनी प्लग के अंत में दिखाई देता है।
☆ ठंड दबाए गए संयुक्त के स्क्रू छेद में कनेक्टिंग कंडक्टर को पेंच करें और इसे एक माउंटिंग रिच के साथ कसें जब तक कि यह टोरसनल न हो 180. (If.)
With other wrenches, the torque is about 12.4N.m) o
कोहनी प्लग और केबल गर्मी को लपेटने के लिए स्वयं-चिपकने वाला टेप का उपयोग करें।
☆ सिस्टम ग्राउंडिंग बिंदु के साथ कोहनी प्लग के ग्राउंड छेद को जोड़ने के लिए ग्राउंडिंग तार का उपयोग करें।
Load input
इसके लिए पर्याप्त परिचालन दूरी सुनिश्चित की जानी चाहिए।
कोहनी प्लग ऑपरेटिंग छेद को हुक करने के लिए एक इन्सुलेट ऑपरेटिंग रॉड का उपयोग करें।
☆ कोहनी प्लग के कनेक्टिंग कंडक्टर को आस्तीन कंडक्टर के साथ संरेखित करें और आगे बढ़ें जब तक कि आपको महसूस न हो कि यह जुड़ा हुआ है, अर्थात, इसे स्थान पर धक्का देना सुनिश्चित करें।
ऑपरेशन तेज, सटीक, निर्णायक और शक्तिशाली होना चाहिए।
Load cut-off
एक इन्सुलेट ऑपरेटिंग लीवर के साथ कोहनी प्लग ऑपरेशन छेद को हुक करें।
☆ आवरण सतह और कोहनी प्लग के बीच घर्षण को कम करने के लिए इन्सुलेटेड ऑपरेटिंग लीवर को बाएं और दाएं चालू करें।
☆ कोहनी प्लग को जल्दी से, सटीक रूप से, निर्णायक रूप से और शक्तिशाली रूप से खींचें, सावधान रहें कि पास के ग्राउंड तार के साथ कंडक्टर को छू न जाए।
एक इन्सुलेट ऑपरेटिंग लीवर के साथ कनेक्टर के माध्यम से एकल (डबल) पर कोहनी प्लग को लटका दें।
☆ इन्सुलेशन ऑपरेशन लीवर का उपयोग संचालक भाग पर जमीन के तार से जुड़े इन्सुलेशन सुरक्षात्मक टोपी को कवर करने के लिए करें।
Notice: कोहनी प्लग का ऑपरेशन उन कर्मियों द्वारा किया जाना चाहिए जो बिजली प्रणाली की सुरक्षा और ऑपरेटिंग प्रक्रियाओं से परिचित हैं।
केवल आपातकालीन (या विशेष) स्थितियों में भार को अलग करने के लिए कोहनी प्लग का उपयोग करें, और एक अनुरूप स्विच का उपयोग करने की सिफारिश की जाती है।
कोहनी प्लग का उपयोग शॉर्ट सर्किट दोषों को बंद करने के लिए नहीं किया जा सकता है।
ए एppendix 5 एकल (डबल) पास फिटिंग और इन्सुलेशन सुरक्षात्मक कैप
☆ एकल (डबल) पास कनेक्टर का उपयोग एक लाइव कोहनी प्लग में प्लग करने के लिए किया जाता है, लाइव केबल को अलग करने के लिए, इसे खंडित करने के लिए, या प्लग करने और खींचने के लिए इसका उपयोग करें
विद्युतीकृत कोहनी प्लग धूल, पानी और नमी में भूमिका निभाता है।
☆ डबल-वे कनेक्टर को एक छोर पर एक कोहनी-टाइप प्लग से और दूसरे छोर पर एक कोहनी-टाइप सर्ज बंदर से जोड़ा जा सकता है।
इन्सुलेशन सुरक्षात्मक कैप आस्तीन और जोड़ों के लिए इन्सुलेशन और सुरक्षात्मक आवरण प्रदान करते हैं।
एसingle (double) pass mounting
1.परिवहन सुरक्षात्मक टोपी को हटाएं, साफ करें और लुब्रिक करें {आस्तीन के माध्यम से एकल (डबल) की आवश्यकताओं का संदर्भ लें}।
2.सिस्टम ग्राउंड के साथ संयुक्त ग्राउंडिंग छेद के माध्यम से एकल (डबल) को कनेक्ट करने के लिए तांबे के तार का उपयोग करें।
3. दीवार पर संयुक्त के माध्यम से एकल (डबल) को लटका दें और फिक्सिंग बोल्ट को कड़ा करें।
4. इन्सुलेशन कैप के साथ संबंधित जोड़ों को सील करें।
नोट: एकल (डबल) पास कनेक्टर को स्थापित करने और हटाने से पहले सभी प्रासंगिक घटकों को कोई शक्ति की स्थिति में होना चाहिए।
Insulation protective cap installation
1.इन्सुलेट सुरक्षात्मक कैप की आंतरिक सतह से संबंधित संयुक्त (या आवरण) की बाहरी सतह को साफ करें और लुब्रिक करें।
2. सिस्टम ग्राउंड के साथ इन्सुलेशन सुरक्षात्मक कैप के ग्राउंडिंग वायर को कनेक्ट करें।
3.इन्सुलेट ऑपरेटिंग लीवर के साथ सुरक्षात्मक कैप जैक को हुक करें और इन्सुलेट कैप को प्रासंगिक संयुक्त (या आस्तीन) में धक्का दें जब तक कि यह जगह में जुड़ा न हो।
Remove the insulating protective cap
1. एक इन्सुलेट ऑपरेटिंग लीवर के साथ सुरक्षात्मक कैप को हुक करें।
2.संपर्क सतह के घर्षण को कम करने के लिए सुरक्षात्मक टोपी को बाएं और दाएं चालू करें, और सुरक्षात्मक टोपी को हटाने के लिए इसे वापस खींचें।
ए एppendix 6. Fault indicator and live indicator
दोष सूचक कोहनी प्लग के परीक्षण बिंदु पर स्थापित है, जब लाइन के माध्यम से बहती है, तो दोष संकेतक के संकेतक में सफेद होता है और स्वचालित रूप से लाल में फ्लिप होता है, यह इंगित करता है कि इस समय लाइन "गलत" स्थिति में है, जब सर्किट सामान्य हो जाता है, तो सिस्टम स्वचालित रूप से संकेतक विंडो को रीसेट करेगा और सफेद हो जाएगा।दोष संकेतक में दो चयन योग्य सीमाएं हैं, उच्च और निम्न, लगभग 400ए ए (RMएस) की कम सीमा और लगभग 800ए ए (RMएस) की उच्च सीमा के साथ।डिलीवरी के समय, दोष संकेतक का प्रदर्शन विंडो दोष संकेत (यानी,यह लाल में प्रदर्शित किया जाता है), और स्थापना के बाद, जब लाइन वोल्टेज 5केवी तक पहुंच जाता है, कुछ मिनटों के बाद, दोष संकेतक सामान्य कामकाजी स्थिति में है, और प्रदर्शन विंडो स्वचालित रूप से सामान्य स्थिति में रीसेट किया जाता है (यानी,यह सफेद रंग में दिखाया गया है)
नोटः केवल जब लाइन-टू-ग्राउंड वोल्टेज आता है 5kv से अधिक, फॉल्ट इंडिकेटर गलती प्रदर्शन कर सकता है और ऊर्जा भंडारण के लिए रीसेट कर सकता है।
कोहनी प्लग के परीक्षण बिंदु पर स्थापित है, और संकेतक प्रकाश की निरंतर चमक इंगित करती है कि लाइन खोजकर्ता को सतर्क करने के लिए लाइन लाइव है।
दोष संकेतक और लाइव संकेतक जलवायु की एक विस्तृत श्रृंखला में उपयोग के लिए पूरी तरह से सील किए गए उत्पाद हैं, और उनके संकेत की स्थिति कंपन या यांत्रिक झटके के कारण नहीं बदलेगा।
Installation steps:
1.संकेतक की स्थापना दो स्थितियों में विभाजित है: केबल हेड जीवित है और जीवित नहीं है, सामान्य परिस्थितियों में, केबल हेड को स्थापना से पहले डी-इंजेट किया जाना चाहिए और ग्राउंड किया जाना चाहिए।
2.एक इन्सुलेट ऑपरेटिंग लीवर के साथ कोहनी प्लग परीक्षण बिंदु के सुरक्षात्मक कैप को हटा दें (परीक्षण बिंदु दाग और जंग से मुक्त होना चाहिए)।
3. चिकनाई संकेतक बूट की आंतरिक सतह को बढ़ता है।
4.इन्सुलेट ऑपरेटिंग लीवर के साथ संकेतक के ऑपरेटिंग छेद को हुक करें, संकेतक को कोहनी प्लग के परीक्षण बिंदु पर रखें, और इसे उपयुक्त स्थिति में घुमाएं।चेतावनी: परीक्षण बिंदु या संकेतक के गंदे, नम या अन्य दोषों से लाइव संकेतक गलत तरीके से संकेत दे सकता है कि लाइन बिजली से बाहर है।एट पर
प्रासंगिक उपकरणों को संचालित करने से पहले, यह सत्यापित करने के लिए राष्ट्रीय मानक द्वारा अनुमोदित अन्य परीक्षण विधियों का उपयोग करना सुनिश्चित करें कि लाइन में बिजली है या नहीं।