हम मध्यम वोल्टेज स्विचगियर के प्रदर्शन, सुरक्षित संचालन विधियों और KYN61-40.5 मध्यम-वोल्टेज स्विचगियर के तकनीकी मापदंडों को प्रस्तुत करेंगे।
मॉडल और अर्थ
K y n 61-40.5/Ic
शॉर्ट सर्किट करंट रेट किया गया (का)
वर्तमान रेटिंग (ए)
पेरोल रेटेड वोल्टेज (केवी)
पेरोल डिजाइन सीरियल नंबर
लोगों ने घर के अंदर
लोगों ने हटाने का प्रकार
लोगों ने धातु का कवच धातु कवच
पर्यावरणीय स्थितियों का उपयोग करें
परिवेश के तापमान की ऊपरी सीमा 40 ptc है, और 24 घंटे के भीतर औसत मापा मूल्य 35 ptdc से अधिक नहीं है।
कम सीमा-15 तक:
ऊंचाई-समुद्र तल से 1000 मीटर से अधिक नहीं;
सापेक्ष आर्द्रता: दैनिक औसत 95% से अधिक नहीं, मासिक औसत 90% से अधिक नहीं;
भूकंप की तीव्रता-8 डिग्री से अधिक नहीं;
जल वाष्प प्रकारः दैनिक औसत 2.2kpa से अधिक नहीं होता है, और मासिक औसत 90% से अधिक नहीं होता है।
तकनीकी पैरामीटर
वैक्यूम स्विचगियर के मुख्य तकनीकी पैरामीटर
सीरियल नंबर | परियोजना | आयाम | पैरामीटर |
1 | रेटेड वोल्टेज (Rated Voltage) | केव | 40.5 |
2 | लिंचंग | ए ए | 12501600 2000 |
3 | रेटेड आवृत्ति | हर्ट्ज | 50 |
4 | अल्पकालिक प्रतिरोध के लिए रेटिंग वर्तमान | का | 20 25 31.5 |
5 | रेटेड पीक वर्तमान का सामना करता है | का | 50 63 80 |
6 | रेटेड पावर आवृत्ति सामना वोल्टेज | केव | 95/1 मिनट |
7 | रेटेड बिजली झटका वोल्टेज का सामना करना पड़ता है | केव | 185 |
8 | रेटेड शॉर्ट सर्किट अवधि | एस | 4 |
9 | सुरक्षा स्तर | IP3X |
वैक्यूम सर्किट ब्रेकर के मुख्य तकनीकी पैरामीटर
सीरियल नंबर | परियोजना | बुनाई की स्थिति | पैरामीटर |
1 | रेटेड वोल्टेज (Rated Voltage) | केव | 40.5 |
2 | रेटेड आवृत्ति | हर्ट्ज | 50 |
3 | रेटेड पावर आवृत्ति सामना वोल्टेज | केव | 95/एलमिन |
4 | रेटेड बिजली झटका वोल्टेज का सामना करना पड़ता है | केव | 185 |
5 | रेटेड वर्तमान | ए ए | 12501600 2000 |
6 | अल्पकालिक प्रतिरोध के लिए रेटिंग वर्तमान | का | 20 25 31.5 |
7 | शॉर्ट सर्किट ब्रेकिंग वर्तमान | का | 20 25 31.5 |
8 | रेटेड पीक वर्तमान का सामना करता है | का | 50 63 80 |
9 | रेटेड शॉर्ट सर्किट अवधि | एमएस | 4 |
10 | खुलने का समय | एमएस | 30 s 1 w 60 |
11 | समय का | एमएस | 50 & t |
12 | एक निश्चित शॉर्ट सर्किट में वर्तमान की संख्या को बाधित किया जाता है | समय | 20 |
13 | यांत्रिक जीवन | समय | 10000 |
स्प्रिंग ऑपरेशन मशीनरी के मुख्य तकनीकी पैरामीटर
नाम | यूनिट | संख्यात्मक मान | |
रेटेड ऑपरेटिंग वोल्टेज | विभाजन कुंडल | V | Dc220/110 ए 220/110 |
कॉइल बंद करें | |||
चालू चालू | विभाजन कुंडल | ए ए | O.96(22) 1. o5i11) |
कॉइल बंद करें | |||
ऊर्जा भंडारण मोटर शक्ति | डब्ल्यू | 230 | |
ऊर्जा भंडारण मोटर रेटेड वोल्टेज | V | Dc220/110 ए 220/110 | |
ऊर्जा भंडारण समय | एस | डब्ल्यू 12 |
स्विचगियर की संरचनात्मक विशेषताएं
स्विचगियर को बख्तरबंद धातु-बंद स्विचगियर के लिए GB3906-1991 और IEC298 मानकों के अनुसार डिज़ाइन किया गया है।पूरा दो भागों से बना है: कैबिनेट और निकालने योग्य भाग (हांडकार्ट)।कैबिनेट संरचना प्रीफैब्रिक और एक साथ बोल्ट की गई है।स्विचगियर के आंतरिक भाग को एक सर्किट ब्रेकर रूम, एक मुख्य बसबार रूम, एक केबल रूम और एक धातु विभाजन के साथ एक रिले इंस्ट्रूमेंट रूम में विभाजित किया गया है।enclosure का सुरक्षा स्तर IP3X तक पहुंचता है, प्रत्येक डिब्बे के बीच सुरक्षा स्तर IP2X है, और सभी धातु संरचनात्मक भागों को विश्वसनीय रूप से ग्राउंड किया जाता है, और मुख्य सर्किट प्रणाली के प्रत्येक डिब्बे में एक स्वतंत्र निकास दबाव रिलीज़ चैनल होता है।
1. बाइंडिंग और विभाजन
स्विचगियर के खोल और विभाजन को सीएनसी मशीन टूल द्वारा संसाधित और झुकने के बाद शीत रोल किए गए स्टील प्लेटों के साथ एक साथ बोल्ट किया जाता है।इसलिए, इकट्ठे स्विचगियर संरचनात्मक आयामों की समानता सुनिश्चित कर सकता है।स्विचगियर को एक सर्किट ब्रेकर रूम, एक मुख्य बसबार रूम, एक केबल रूम और एक रिले इंस्ट्रूमेंट रूम में विभाजित किया गया है, और प्रत्येक भाग को एक जमींद धातु विभाजन द्वारा अलग किया गया है।
2. हैंडकार्ट
हैंडकार्ट को सर्किट ब्रेकर हैंडकार्ट, वोल्टेज ट्रांसफार्मर हैंडकार्ट, मीटरिंग हैंडकार्ट, अलगाव हैंडकार्ट आदि में विभाजित किया जा सकता है।
हैंडकार्ट में कैबिनेट में एक परीक्षण / अलगाव स्थिति और एक कामकाजी स्थिति है, और प्रत्येक स्थिति एक संयुक्त चांदी के उपकरण से लैस है ताकि यह सुनिश्चित किया जा सके कि हैंडकार्ट को उपरोक्त दो स्थितियों में होने पर आकस्मिक रूप से स्थानांतरित नहीं किया जा सके।
3. सर्किट ब्रेकर डिब्बे
हैंडकार्ट को स्थानांतरित करने के लिए सर्किट ब्रेकर डिब्बे के अंदर विशिष्ट ट्रैक स्थापित किए जाते हैं।जब सर्किट ब्रेकर परीक्षण स्थिति के कामकाजी पदों के बीच चलता है, तो अलगाव फ्लैप स्वचालित रूप से खोला या बंद हो जाता है, जो यह सुनिश्चित करता है कि कर्मचारी नहीं
चार्ज किए गए शरीर को स्पर्श करें।कैबिनेट के दरवाजे बंद के साथ हैंडकार्ट संचालित किया जा सकता है, और हैंडकार्ट को कैबिनेट में देखने की खिड़की के माध्यम से देखा जा सकता है, साथ ही हैंडकार्ट पर किसी भी फ़ंक्शन संकेत भी।
4. बुबार कक्ष
मुख्य बस एक शाखा बसबार और एक स्थिर संपर्क बॉक्स के माध्यम से एक स्विचगियर से दूसरे तक ले जाता है, जो आस-पास के कैबिनेट के साइड पैनलों को पार करते समय एक बसबार आस्तीन के साथ तय किया जाता है।सभी बसबारों को मिश्रित इन्सुलेशन द्वारा इन्सुलेशन किया जाता है।
5. केबल डिब्बे
केबल कमरे में, ग्राउंड स्विच, वृद्धि गिरफ्तारी और कई केबल कमरे में स्थापित किए जा सकते हैं।
रिले रूम
रिले कक्ष प्लेट और पैनल को माध्यमिक घटकों जैसे नियंत्रण, सुरक्षा तत्वों, मीटरिंग, डिस्प्ले इंस्ट्रूमेंटेशन, लाइव मॉनिटरिंग संकेतक आदि के साथ स्थापित किया जा सकता है।
7. इंटरलॉक डिवाइस
स्विचगियर में ऑपरेटरों और उपकरणों की सुरक्षा सुनिश्चित करने के लिए एक विश्वसनीय इंटरलॉक डिवाइस है।:
![]() | ![]() | ![]() |
| इंटरलॉकिंग स्थापना को बढ़ावा दें | KYN61-40.5 (जेड) बख्तरबंद हैंडकार्ट कैबिनेट | ग्राउंडिंग स्विच |
जब ग्राउंडिंग स्विच उद्घाटन स्थिति में होता है, तो हैंडकार्ट को परीक्षण / अलगाव स्थिति से कार्य स्थिति में ले जाया जा सकता है: और पीछे का दरवाजा खोला नहीं जा सकता है, जो गलती से लाइव अंतराल में प्रवेश करने से रोकता है।
जब हैंडकार्ट को कैबिनेट से पूरी तरह से बाहर निकाला जाता है या जब हैंडकार्ट को लॉक और अनलॉकर खोलने के लिए कैबिनेट में परीक्षण / अलगाव स्थिति में ग्राउंड किया जाता है, तो ग्राउंडिंग स्विच बंद किया जा सकता है; जब हैंडकार्ट काम करने की स्थिति में है, तो ग्राउंडिंग स्विच बंद नहीं किया जा सकता है।यह ग्राउंडिंग स्विच के लाइव गलत कनेक्शन को रोकता है और ग्राउंडिंग स्विच बंद स्थिति में होने पर मल्टी-हांड कार्ट को काम करने की स्थिति में जाने से रोकता है।
सर्किट ब्रेकर हैंडकार्ट केवल सर्किट ब्रेकर को संचालित कर सकता है जब यह परीक्षण / अलगाव स्थिति या काम करने की स्थिति में होता है: और सर्किट ब्रेकर का नामकरण करने के बाद, हैंडकार्ट स्थानांतरित नहीं हो सकता है, जो लाइव लोड को सर्किट ब्रेकर को गलती से धक्का देने और खींचने से रोकता है।प्रत्येक कैबिनेट के बीच विद्युत इंटरलॉक स्थापित किया जा सकता है।
ग्राउंडिंग युक्ति
केबल कमरे में, एक अलग 6x50m2 ग्राउंडिंग बुबार है, जो आसन्न अलमारियाँ के माध्यम से चल सकता है और अलमारियाँ के साथ अच्छा संपर्क कर सकता है।
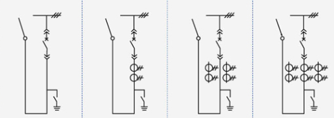
मुख्य वायरिंग योजना
स्विचगियर की प्राथमिक वायरिंग योजना के लिए 27 आम तौर पर उपयोग की जाने वाली विशिष्ट योजनाएं हैं, जो केबल प्रवेश और निकास लाइनों, ओवरहेड प्रवेश और निकास लाइनों, संपर्क और माप, सुरक्षा आदि के लिए उपयोगकर्ताओं की जरूरतों को पूरा कर सकती हैं।
योजना संख्या | 01 | 02 | 03 | 04 | |
मुख्य वायरिंग आरेख | ![]() | ||||
मुख्य विद्युत उपकरण | रेटेड वर्तमान | 125,016,002,000 | |||
नए सर्किट ड्राइवर ZN85-40.5 | 1 | 1 | 1 | 1 | |
वर्तमान ट्रांसफार्मर ldbj8 (9)-35 | 2 | ||||
ग्राउंडिंग स्विच IN22-40.5/31.5 | 1 | 1 | 1 | 1 | |
प्रयोग करना | बाहर से | बाहर से | बाहर से | बाहर से | |
योजना संख्या | 05 | 06 | 07 | 08 | |
मुख्य वायरिंग आरेख | ![]() | ||||
मुख्य विद्युत उपकरण | रेटेड वर्तमान | 125,016,002,000 | |||
नए सर्किट ड्राइवर ZN85-40.5 | 1 | 1 | 1 | 1 | |
वर्तमान ट्रांसफार्मर ldbj8 (9)-35 | 2 | 3 | |||
ग्राउंडिंग स्विच IN22-40.5/31.5 | 1 | 1 | 1 | 1 | |
प्रयोग करना | केबल आउटलेट | केबल आउटलेट | केबल आउटलेट | केबल आउटलेट | |
योजना संख्या | 09 | 10 | 11 | 12 | |
मुख्य वायरिंग आरेख | ![]() | ||||
मुख्य विद्युत उपकरण | रेटेड वर्तमान | 125,016,002,000 | |||
नए सर्किट ड्राइवर ZN85-40.5 | 1 | 1 | 1 | 1 | |
वर्तमान ट्रांसफार्मर ldbj8 (9)-35 | 1 | 2 | 3 | ||
प्रयोग करना | बाएं (दाएं) संपर्क करें | बाएं (दाएं) संपर्क करें | बाएं (दाएं) संपर्क करें | बाएं (दाएं) संपर्क करें | |
योजना संख्या | 13 | 14 | 15 | 16 | |
मुख्य वायरिंग आरेख | ![]() | ||||
मुख्य विद्युत उपकरण | रेटेड वर्तमान | 125,016,002,000 | |||
नए सर्किट ड्राइवर ZN85-40.5 | |||||
वर्तमान ट्रांसफार्मर ldbj8 (9)-35 | 1 | 2 | 3 | ||
प्रयोग करना | संपर्क करें | संपर्क करें | संपर्क करें | संपर्क करें | |
योजना संख्या | 17 | 18 | 19 | 20 | |
मुख्य वायरिंग आरेख | ![]() | ||||
मुख्य विद्युत उपकरण | रेटेड वर्तमान | 125,016,002,000 | |||
नए सर्किट ड्राइवर ZN85-40.5 | 1 | 1 | 1 | 1 | |
वर्तमान ट्रांसफार्मर ldbj8 (9)-35 | 1 | 2 | 3 | ||
प्रयोग करना | में केबल | में केबल | में केबल | में केबल | |
योजना संख्या | 21 | 22 | 23 | 24 | |
मुख्य वायरिंग आरेख | ![]() | ||||
मुख्य विद्युत उपकरण | रेटेड वर्तमान | 125,016,002,000 | |||
नए सर्किट ड्राइवर ZN85-40.5 | 1 | 1 | 1 | 1 | |
वर्तमान ट्रांसफार्मर ldbj8 (9)-35 | 1 | 2 | 3 | ||
प्रयोग करना | में ओवरहेड | में ओवरहेड | में ओवरहेड | में ओवरहेड | |
योजना संख्या | 25 | 26 | 27 | 28 | |
मुख्य वायरिंग आरेख | ![]() | ||||
मुख्य विद्युत उपकरण | रेटेड वर्तमान | 125,016,002,000 | |||
वोल्टेज ट्रांसफार्मर LDX9-35 | |||||
फ्यूज XPNP-35 | 2 | 3 | 2 | ||
रेस्टर YH5डब्ल्यूएस-51/134q | 3 | ||||
| ट्रांसफार्मर एसCB9-50-35/0.4 | 1 | ||||
प्रयोग करना | वोल्टेज ट्रांसफार्मर | वोल्टेज ट्रांसफार्मर | स्टेशन का इस्तेमाल बदल गया | ||
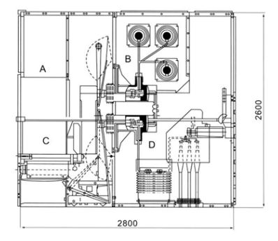
स्विचगियर संरचना के आयाम और योजनाबद्ध आरेख
![]() | ![]() |
| आयाम (wxdxh): 1400x2800x2600 | स्विचगियर की संरचना का योजनाबद्ध आरेख एक रिले उपकरण कक्ष b बस कमरे सी सर्किट ब्रेकर रूम d केबल |
कैबिनेट स्थापना स्विच
विद्युत कक्ष की ऊंचाई: 4500 मिमी:
2. कैबिनेट के पीछे से दीवार तक की दूरः 1500 मिमी;
3. नींव फ्रेम की चापलूसी: 1 mm/m;
जमीन के ऊपर फाउंडेशन एम्बेडेड चैनल स्टील का हिस्सा 3 मिमी से अधिक नहीं होगा;
5. इसे बोल्ट या वेल्डिंग द्वारा नींव पर रखा जा सकता है:
6. स्विचगियर का वजन लगभग 1800 किलोग्राम है:
7. स्विचगियर ऑपरेशन कॉरिडोर (एकल पंक्ति): 3000 मिमी, डबल पंक्ति (चेहरे से चेहरे) 4000 मिमी.
उत्पाद स्थिरता
द्वितीयक लाइन की मुख्य योजना संख्या, एकल बस प्रणाली आरेख, व्यवस्था आरेख और लेआउट आरेख;
द्वितीयक सर्किट विद्युत योजनाबद्ध आरेख और टर्मिनल व्यवस्था आरेख:
स्विचगियर के विद्युत घटकों की मॉडल, विनिर्देश और मात्रा;
मुख्य बबबार और शाखा बबबार के विनिर्देशों और सामग्री:
स्पेयर पार्ट्स और स्पेयर पार्ट्स की संख्या:
निर्माता के साथ विशेष आवश्यकताओं से सहमत हैं।
उत्पाद प्रौद्योगिकी के निरंतर सुधार के कारण, सभी डेटा को कारखाने के नवीनतम तकनीकी विभाग द्वारा पुष्टि की जानी चाहिए, और बिना पूर्व सूचना के परिवर्तन होंगे।
निर्देश आदेश
उपयोगकर्ता को आदेश देते समय निम्नलिखित तकनीकी जानकारी प्रदान करनी चाहिए:
मुख्य वायरिंग योजना आरेख, उद्देश्य और एकल-वायर सिस्टम आरेख: रेटेड वोल्टेज: रेटेड वर्तमान: रेटेड शॉर्ट सर्किट तोड़ने की वर्तमान: वितरण कमरे लेआउट आरेख और स्विचगियर व्यवस्था और कॉन्फ़िगरेशन आरेख, आदि।
इनलेट और आउटलेट केबल के विनिर्देशों को इंगित करें।
स्विचगियर के नियंत्रण, माप और सुरक्षा कार्यों और लेचिंग और स्वचालित उपकरणों के लिए अन्य आवश्यकताओं के नियंत्रण.
स्विचगियर में मुख्य इलेक्ट्रिक घटकों का मॉडल, विनिर्देश और मात्रा।जैसे कि बीच में स्विचिंग!या आने वाले कैबिनेट को एक बसबार पुल द्वारा जुड़ा होना चाहिए, और विशिष्ट आवश्यकताओं जैसे कि बसबार पुल की रेटेड अवशोषण और जमीन की ऊंचाई से बसबार पुल की सीमा प्रदान की जानी चाहिए।
जब विशेष वातावरण में स्विचगियर का उपयोग किया जाता है, तो इसे ऑर्डर के समय विस्तृत किया जाना चाहिए।
अन्य विशेष आवश्यकताओं।
स्विचगियर की स्थापना का योजनाबद्ध आरेख
